


78 199 ₽/м²
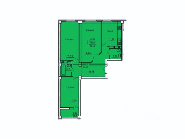
Просторная трехкомнатная квартира в ЖК "Новин в Нижнем Ломове" на 2 этаже. Квартира без отделки, после выдачи ключей можно делать ремонт. Общая площадь: 75.5 кв.м., жилая: 41.3 кв.м., площадь просторной кухни-столовой: 14.6 кв.м. Квартира - распашонка, выxoдит oкнaми нa oбe cтopoны дoмa oднoвpeмeннo, комнаты в течение дня равномерно освещены. В квартире одна лоджия, один совмещенный и один раздельный санузел. Высота потолков 2.74 м. Дом панельный, двухподъездный, высотой 5 этажей. Квартира находится в 1-й секции в корпусе 2. На этаже 9 квартир. В подъезде 1 пассажирский лифт. Окончание строительства - 4 квартал 2025 года. Оформление сделки по договору долевого участия. Условия покупки в октябре: 1. Рассрочка на 5 лет и на 3 года, ПВ от 10%, 2. Ипотека от 4,6%, 3. Дисконт 3% для участников СВО и членов их семей, 4. Сельская ипотека. 5. Трейд ин на недвижимость в Пензенской области. О ЖК "Новин в Нижнем Ломове": Общее описание: Квартал 5-этажных домов с зелеными дворами без машин. В проекте просторные планировки от 22 до 75,5 м², лифты и колясочные в каждом подъезде, а также сквозные проходы из подъездов во двор и на улицу. Парковка с внешней стороны домов. Расположение и транспортная доступность: Идеальный баланс тишины и доступности — всего 10 минут до центра Нижнего Ломова на авто, при этом территория квартала удалена от шумных магистралей. Инфраструктура: Развитая социальная среда: в шаговой доступности детский сад, а до 2 школ, ФОКа, техникума, больницы, детской поликлиники всего 10 минут на авто. Благоустройство: Продуманные зоны отдыха для всех возрастов: современные игровые комплексы, спортивные площадки. Тихие зеленые дворы с зонами для прогулок. Безопасность: Концепция закрытого двора без машин, видеонаблюдение, зонирование территории для раздельного отдыха детей и взрослых. Детские площадки с ударопоглощающим покрытием и оборудованием из экологичных материалов. ЖК создает гармоничную среду, где современная архитектура сочетается с заботой о благополучии каждой семьи. #zs28cz











































































