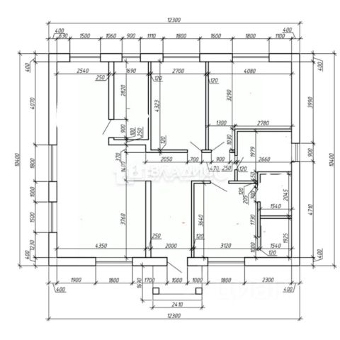
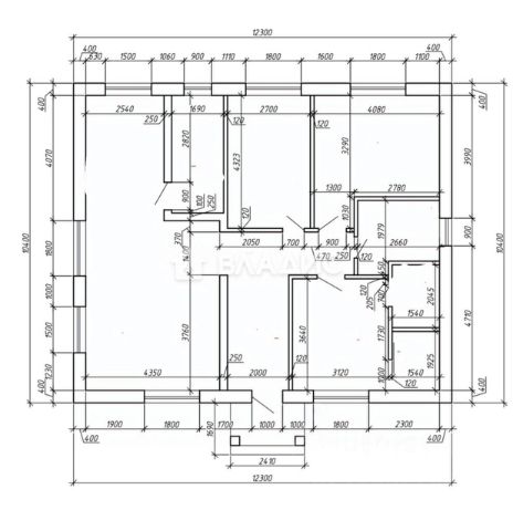
Код объекта: 1708573. Продается дом с земельном участком в самом начале с. Бессоновка 2-й Магистральный проезд, 7А. Дом 2025 года постройки в наличии, с коммуникациями, находится на завершающем этапе строительства Дом подходит под семейную ипотеку! Уникальный двух этажный дом с 2мя террасами и интересными архитектурными решениями. Общая площадь дома: 152 кв.м. Площадь комнат: 13+21+14 кв.м. Площадь кухни-гостиной: 40 кв.м. Площадь санузла 1: 3 кв.м. Площадь санузла 2: 7 кв.м. Котельная -3 кв.м. Прихожая -6 кв.м. Земельный участок правильной и ровной формы площадью: 7 соток. Материал стен: газоблок 300 мм + облицовка кирпичом баварская кладка. Перекрытия - железо-бетонные плиты - 1 этаж. Крыша: металлочерепица утепленная. Окна: ПВХ 70-го профиля с ламинацией и микропроветриванием. В этом доме все продумано для вашего комфортного проживания 3 изолированных комнаты оптимального размера, а также большая кухня-гостиная с панорамными окнами. Предусмотрено 2 санузла под ванную и душевую кабину и туалет. Внутренняя отделка:черновая с коммуникациями. Рядом - остановка общественного транспорта 8 минут пешком, до города Пенза 3 км. Территория активно застраивается и облагораживается, рядом находится новая школа. Внимание!!! Последние фото образец предчистовой отделки за дополнительную плату.(стяжка пола, теплые полы по всему дому, штукатурка стен под обои), выполнена разводка по отоплению, электрике, дом оснащен отопительным котлом, всеми коммуникациями: вода (организована скважина), канализация (организован септик), свет (выполнено технологическое присоединение, произведена оплата за такое присоединение), газ выполнено технологическое присоединение, произведена оплата за такое присоединение). Прямая продажа от застройщика, рассмотрим обмен на вашу недвижимость. Есть выбор объектов в с. Богословка, с. Засечное, с. Малая Валяевка, Мичуринский, Заря, с. Ухтинка, с. Бессоновка, а также есть выбор свободных земельных участков. Строительство под заказ.















































































