Мы используем куки-файлы. Соглашение об использовании
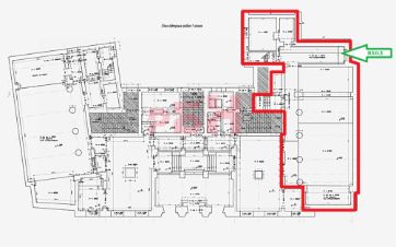
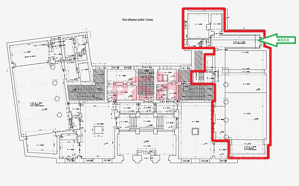
Помещение свободного назначения, 285 м²

Сдается помещение свободного назначения, 285 м²

Эксклюзивное помещение в центре.

Площадь285 м²
Этаж1 из 4
ПомещениеСвободно
Предлагаю в аренду эксклюзивное помещение 285,0 кв.м. в историческом центре города, по адресу: г. Пенза, ул. Володарского д. 68. ОТ СОБСТВЕННИКА! БЕЗ КОМИССИИ! За последний год произведен капитальный ремонт здания: демонтирована старая кровля, уложена новая обрешетка, стропильные конструкции, вентиляционная шахта и перекрыта крыша профлистом, так же оштукатурены и покрашены стены фасада, установлены новые окна, проложена гидроизоляция фундамента и обустроена отмостка. Благодаря чему восстановлен исторический роскошный облик здания в стиле сталинский ампир. В помещении полностью заменена система отопления, водоснабжения и водоотведения. Основные характеристики объекта: расположено на первой линии в деловом центре города, высокий автомобильный и пешеходный трафик, рядом много социально значимых объектов, бизнес центров, торговых центров, мест общественного питания и развлечения, высота потолка помещения - 5,5 метров, высота потолка антресоли - 2,65 м., городские коммуникации, мощность эл. энергии 60 кВт, Стоимость аренды 265 000 рублей в месяц, затраты на коммунальные и эксплуатационные услуги оплачиваются отдельно. Идеальное место для ресторана и других развлекательных заведений. Рассмотрим любые ваши предложения! Выбирай лучшее, экономь время, звони прямо сейчас! Арт. 109512811
lock

Войдите или зарегистрируйтесь
для просмотра информации

Просматривайте условия сделки и всю информацию об объекте
Сохраняйте фильтры в поиске и не вводите заново
Доступ к избранному с любого устройства
Неограниченное добавление в избранное
Позвоните автору
Вам ответят на все вопросы
Остались вопросы по объявлению?
Позвоните владельцу объявления и уточните необходимую информацию.
  • Инфраструктура
  • Похожие рядом
  • Общая площадь285 м²
Помощь надёжных риелторов
Риелтор партнёр Циан поможет купить или продать любую недвижимость
265 000 ₽/мес.

Прямая аренда (от года), предоплата за 1 месяц

3 533 $/мес.
3 012 /мес.
Цена за метр
11 158 ₽ в год
Налог
УСН
Комиссия
нет
Коммунальные платежи
не включены
Эксплуатационные расходы
не включены
Агентство недвижимости
Суперагент
На Циан
7 лет
Объектов в работе
455