Мы используем куки-файлы. Соглашение об использовании
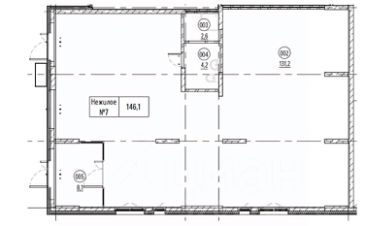
Площадь146,1 м²
Этаж1 из 17
Номер объекта: 550216. В продаже коммерческое помещение площадью 146 м2 в ЖК Upgrade Family. Расположение: г. Пенза, р-н Дальнее Арбеково, ул. 65-летия Победы 32. Этот объект станет отличным инвестиционным вложением, стартовой площадкой для вашего бизнеса или развития текущей деятельности. Основные характеристики объекта: - Общая площадь: 146,1 м2 - Возможно разделение на 2 помещения - Расположение: 1 этаж жилого дома - Водоснабжение и водоотведение заведены в помещение. - Установлены стальные радиаторы. - Выполнены работы по устройству стяжки. - Оконные конструкции ПВХ. - Высокие потолки 4 м Преимущества объекта: 1. Густонаселенный район Арбековская застава. Благодаря расположению дома на первой линни, а также скорому открытию набережной на Арбековский прудах - объект будет привлекать большое количество потенциальных покупателей и арендаторов. 2. Возможность использования различных видов деятельности. Объект может быть использован как под один, так и под несколько видов бизнеса: магазин, аптека, кафе, салон красоты, фитнес-центр и др. Для более подробной информации - звоните!
lock

Войдите или зарегистрируйтесь
для просмотра информации

Просматривайте условия сделки и всю информацию об объекте
Сохраняйте фильтры в поиске и не вводите заново
Доступ к избранному с любого устройства
Неограниченное добавление в избранное
Позвоните автору
Вам ответят на все вопросы
Остались вопросы по объявлению?
Позвоните владельцу объявления и уточните необходимую информацию.
  • Инфраструктура
  • Похожие рядом
  • Общая площадь146,1 м²
  • Линия домовПервая
Центральное отопление
Помощь надёжных риелторов
Риелтор партнёр Циан поможет купить или продать любую недвижимость
РиелторЦентрис
Документы проверены
26 500 000 ₽
372 144 $
321 039
Цена за метр
181 383 ₽
Налог
НДС включен: 4 778 688 ₽
Агентство недвижимости
Документы проверены
На Циан
8 лет
Объектов в работе
56