Мы используем куки-файлы. Соглашение об использовании
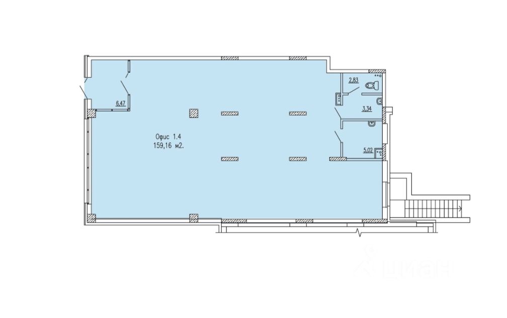
Площадь159,16 м²
Этаж1 из 16
КлассA
Номер объекта: 548818. Вашему вниманию предлагается торговое помещение площадью 159 кв.м. Расположение: г. Пенза, ул. Измайлова 41Б, ЖК Сити Квартал Первый этаж. Отдельный вход. Высокие потолки 4 м. Удобная планировка. Большой фасад для рекламы. Вместительная парковка. Густонаселенный район. Под любой вид деятельности. Дом сдан и заселен! В доме уже открыт магазин сети Магнит и Магнит Аптека. Всего планируется постройка еще 3 жилых домов комплекса! Рядом остановки общественного транспорта, торговые центры, крупные жилый комплексы. По всем вопросам звоните!
lock

Войдите или зарегистрируйтесь
для просмотра информации

Просматривайте условия сделки и всю информацию об объекте
Сохраняйте фильтры в поиске и не вводите заново
Доступ к избранному с любого устройства
Неограниченное добавление в избранное
Позвоните автору
Вам ответят на все вопросы
Остались вопросы по объявлению?
Позвоните владельцу объявления и уточните необходимую информацию.
  • Инфраструктура
  • Похожие рядом
  • Общая площадь159,16 м²
  • Линия домовПервая
Центральное отопление
Помощь надёжных риелторов
Риелтор партнёр Циан поможет купить или продать любую недвижимость
РиелторЦентрис
Документы проверены
23 874 000 ₽
319 137 $
271 658
Цена за метр
150 000 ₽
Налог
НДС включен: 4 305 147 ₽
Агентство недвижимости
Документы проверены
На Циан
8 лет
Объектов в работе
79