Мы используем куки-файлы. Соглашение об использовании

Продается 3-комн. квартира, 120,5 м²

Общая площадь120,5 м²
Жилая площадь54,8 м²
Площадь кухни17,6 м²
Этаж2 из 5
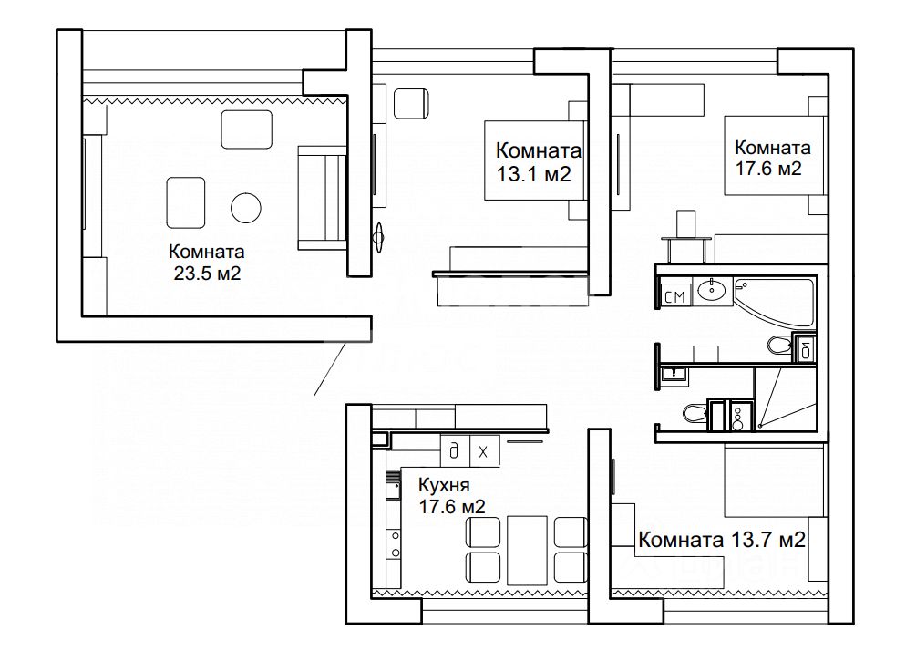
Предлагаем вашему вниманию великолепную 3-комнатную квартиру, расположенную в самом сердце города по адресу Красная 65. Это идеальное место для тех, кто ценит комфорт и удобство городской жизни. Квартира обладает отличной планировкой (РАСПАШОНКА), где все комнаты изолированы, что обеспечивает максимальное уединение и уют для каждого члена семьи. Общая площадь квартиры составляет 113.5 кв.м,+ дополнительно имеется просторная лоджия площадью 7 кв.м, где можно наслаждаться утренним кофе или вечерним отдыхом. Каждая комната в квартире имеет свои особенности: Просторная комната 1 площадью 23.5 кв.м. станет идеальным местом для вашей спальни или кабинета. Комната 2 по 17.6 кв.м. подходят как для детских, так и для гостевых помещений. Уютная комната 3 площадью 13.7 кв.м. может служить как спальней, так и рабочим пространством. Кухня площадью 17.6 кв.м. станет настоящим центром семейных встреч, где вы сможете готовить и проводить время с близкими. Коридор площадью 19.6 кв.м. создает первое впечатление о квартире, радуя своим пространством и светом. В квартире предусмотрено два полноценных санузла, что очень удобно для большой семьи. Также имеются две кладовые, которые помогут организовать хранение вещей. Качество ремонта вызывает восхищение. Выполненный евроремонт продуман до мелочей: установлены пластиковые окна, натяжные потолки, обновленная электрика и выровненные стены, оклеенные дорогими обоями. Санузлы отделаны современным кафелем, а на полу в комнатах и кухне уложен качественный ламинат, в коридоре керамогранит. Лоджия застеклена и утеплена с панорамным остеклением, а межкомнатные двери и входная металлическая дверь выполнены на высоком уровне. В подарок новым владельцам остается: кухонный гарнитур, мебель, техника. Территория дома огорожена, обеспечивая безопасность и спокойствие. На территории много парковочных мест, что является большим плюсом в центре города. Развитая инфраструктура делает жизнь в этом районе особенно комфортной. В шаговой доступности находятся: Классическая гимназия 1, многопрофильная гимназия 4 "Ступени" им. Н.М. Пазаева, центр детского развития "Наукоград", кафе и рестораны, парк им. Белинского, а также магазины разной направленности и остановки общественного транспорта. Квартира принадлежит одному взрослому собственнику и не имеет обременений. Все документы проверены и готовы к сделке. Не упустите возможность стать владельцем этой великолепной квартиры! По всем вопросам звоните, мы с радостью ответим на ваши интересы и организуем просмотр. Арт. 134891689
Позвоните автору
Вам ответят на все вопросы

О квартире

Тип жилья

Вторичка

Общая площадь

120,5 м²

Жилая площадь

54,8 м²

Площадь кухни

17,6 м²

Санузел

2 раздельных

Балкон/лоджия

1 лоджия

Вид из окон

Во двор

Ремонт

Евроремонт

О доме

Год постройки

1974

Тип дома

Кирпичный

Тип перекрытий

Железобетонные

Подъезды

3

Отопление

Центральное

Аварийность

Нет

Газоснабжение

Центральное

Спросите умного помощника
Получите экспертное мнение о жилье

Расположение

Ипотечный калькулятор
  • Базовая
  • Семейная
  • ИТ-ипотека
  • 20%
  • 30%
  • 40%
  • 50%
лет
  • 10 лет
  • 20 лет
  • 30 лет
Загружаем предложения от застройщика и банков
Помощь риелтора
Проверенный риелтор поможет купить или продать квартиру
12 450 000 ₽
Цена за метр
103 320 ₽/м²
Условия сделки
свободная продажа
Ипотека
возможна
Агентство недвижимости
Документы проверены
На Циан
7 лет
Объектов в работе
244
5,0・1