Мы используем куки-файлы. Соглашение об использовании
Общая площадь106 м²
Участок10 сот.
Материал домаДеревянный
Этажей в доме1
Год постройки2023
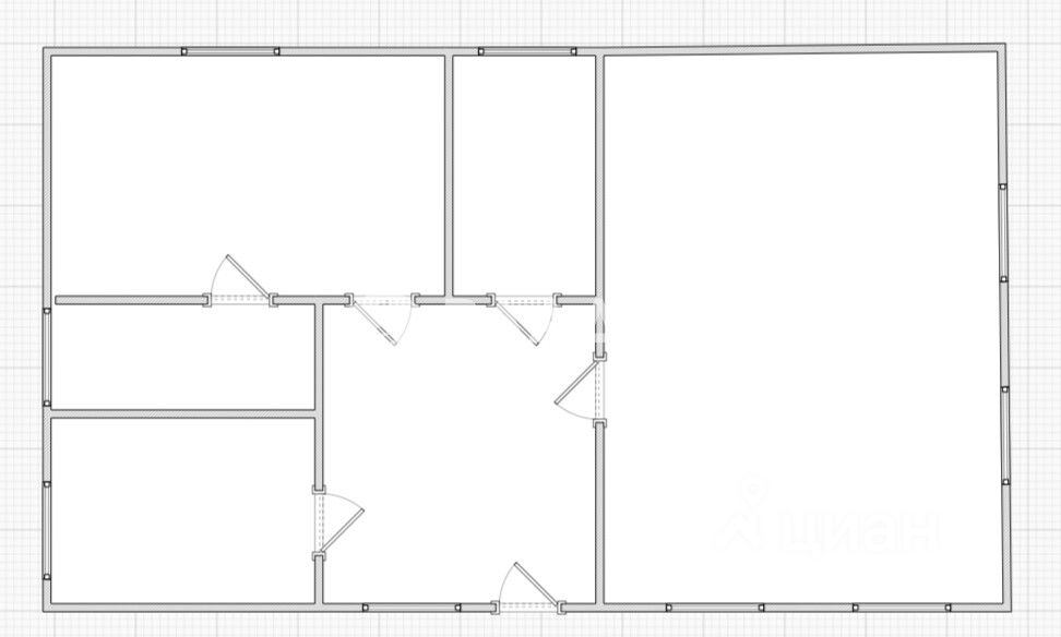
Код объекта: 2134564. В продаже дом в селе Чемодановка, по ул. 2-я Новая, 30. Дом построен в 2023 году по каркасной технологии, на железобетонных сваях. Площадь дома - 106,5 кв.м., Жилая площадь — 65 кв. м. Площадь кухни — 13 кв. м. Три комнаты с площадью 35 кв. м, 15 кв. м и 15 кв. м предлагают удобное пространство для жизни. Высота потолков 2,7 м создаёт ощущение простора и свободы. Дом подходит для круглогодичного проживания, обеспечен всеми необходимыми коммуникациями: электричеством, водоснабжением из скважины - 56 метров (второй водоносный слой), газом, канализацией. Отопление осуществляется через индивидуальный двухконтурный котёл, что позволяет эффективно управлять затратами на тепло. Участок площадью 10 соток. Удобное расположение дома в 20 километрах от города делает его идеальным выбором для тех, кто хочет наслаждаться спокойствием загородной жизни, сохраняя при этом лёгкий доступ к городской инфраструктуре. Состояние дома — с ремонтом, что даёт возможность новым владельцам сразу заехать и жить. Позвоните нам прямо сейчас, чтобы узнать больше и записаться на просмотр.
Позвоните автору
Вам ответят на все вопросы

О доме

Площадь

106 м²

Материал дома

Деревянный

Количество этажей

1

Количество спален

3

Год постройки

2023

Об участке

Площадь

10 сот.

Статус участка

Индивидуальное жилищное строительство

Коммуникации и удобства

Санузел

1 в доме

Канализация

Есть

Водоснабжение

Центральное

Электричество

Есть

Газ

Есть

Спросите умного помощника
Получите экспертное мнение о жилье

Расположение

Подпишитесь на объявления в этой локации
Мы сообщим, как только поблизости появится что‑нибудь новенькое
Ипотечный калькулятор
  • Базовая
  • Семейная
  • ИТ-ипотека
  • 20%
  • 30%
  • 40%
  • 50%
лет
  • 10 лет
  • 20 лет
  • 30 лет
Загружаем предложения от застройщика и банков
Хотите продать недвижимость?Разместите объявление на ЦианРазместить
3 700 000 ₽
Цена за метр
34 906 ₽/м²
Ипотека
возможна
Агентство недвижимости
Документы проверены
Риелтор