


135 068 ₽/м²
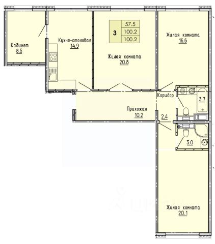
WELLART City жилой комплекс бизнес-класса в историческом центре города, на пересечении улиц Богданова и Свердлова. Сдача первой очереди летом 2026 года! Квартиру можно посмотреть уже сейчас Большой выбор условий оплаты от DEWELL group: - Ипотека от 4,6% без удорожания - Рассрочка до 5 лет, без участия банка - Рассрочка в первоначальным взносом от 1 000 000 рублей - TRADE IN от застройщика Преимущества WELLART City: -Уникальные строения, каждое со своей архитектурой -Клинкерная плитка и композитные панели в фасадах - Благоустройство с всесезонным озеленением и зонами с биокамином для тихого отдыха - Тихие прогулочные зоны во дворе - Детские зоны с батутами, горки и качели для всех возрастов - Зоны вай-фай во дворе позволят работать вне дома и быть всегда на связи - Собственный прогулочный бульвар и центральная площадь - Просторные холлы с дизайнерским ремонтом, точками wi-fi, зонами коворкинга и мягкими зонами для ожидания Уникальные форматы квартир с видом на Суру и город: - Квартиры с мастер-спальней - Квартиры с окном в ванной комнате - Квартиры с террасами и открытыми лоджиями - Премиальное остекление бренда Kommerling профиль 76мм - Увеличенные дизайнерские входные двери - Двухуровневый отапливаемый подземный паркинг - Доступ в паркинг на лифте на -1 и -2 этажи - Кладовые для хранения в паркинге Собственная инфраструктура ЖК - линия коммерческих помещений с магазинами, кафе и ресторанами В шаговой доступности: - Финансовый университет 2 мин - Гимназия Максимум 2 мин - Детский клуб Золотые Бусинки 3 мин - Шишки Орешки 5 мин - Сквер им. Лермонтова 10 мин - ЗООПАРК 10 мин - Парк им.Белинского 15 мин - ПГУ 15 мин - Гимназия 1 18 мин *Стоимость актуальна на момент размещения объявления Продается 3-комнатная квартира 100 м2 в Пензе.











































































































